Newly Listed For Sale

111 CARDINAL RD

SOUTH ELGIN, IL 60177,

$ 559,899

Overview

  • For Sale

    Status
  • 30

    MLS#
  • 4

    Bedrooms
  • 3

    Total Baths
  • 3

    Parking
  • 0.06

    Acres
  • 2758

    Square Feet
  • 2024

    Year Built

Description

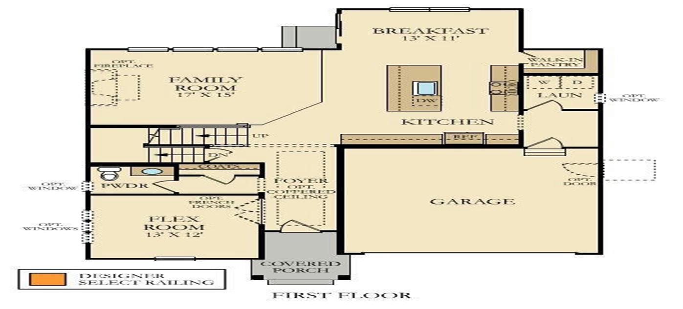
MODEL HOME FOR SALE!! This wonderful The Rainier Floor Plan Defines the Functional, Livable Space for the busiest of families! This home is Amazing with 2,758 sq.ft. with 4 bedrooms PLUS LOFT, 2.5 bathrooms, Full Basement with Rough in plumbing and a 3 car garage. Dream Kitchen includes 42" Timeless white Cabinets , Quartz Counters, Center Island, Walk in Pantry, GE Stainless Steel Appliances & bright Breakfast Room that opens to backyard! The Kitchen is open to the family room, which features a cozy fireplace. Primary Suite includes walk-in closet, with a private bathroom with 35" Vanity Cabinet, Quartz Counter & Dual Sink! All secondary bedrooms have Walk in Closets and the Open loft is Perfect for a Play area or Homework spot!

Read More

More Details

  • 2024

    Year Built
  • 3

    Parking
  • 203.01

    Price / Sq Ft
  • 580

    HOA
  • Yes

    Cooling
  • Yes

    Heating
  • 1718 Day(s)

    On Website
  • 0.06

    Acres
Interior

Interior

Living Area
2758 Sq Ft
Appliances
NA
Bedrooms Total
4
Bathrooms Total
3
Bedrooms Full
NA
Hoa

Hoa Features

Association Fee Frequency
Yearly
Association Fee Includes
580
Association Amenities
Other
Construction

Building And Construction

Property Sub Type
For Sale
Property Type
Residential
Year Built
2024
Exterior

Exterior And Lot

Exterior Features
NA
Garage Spaces
NA
Parking Total
3
Utilities

Utilities

Heating/Cooling
NA
Area

Area

Street
SOUTH ELGIN, IL 60177
Suburb
NA
City
South Elgin

Location

View Map

I'm Interested